
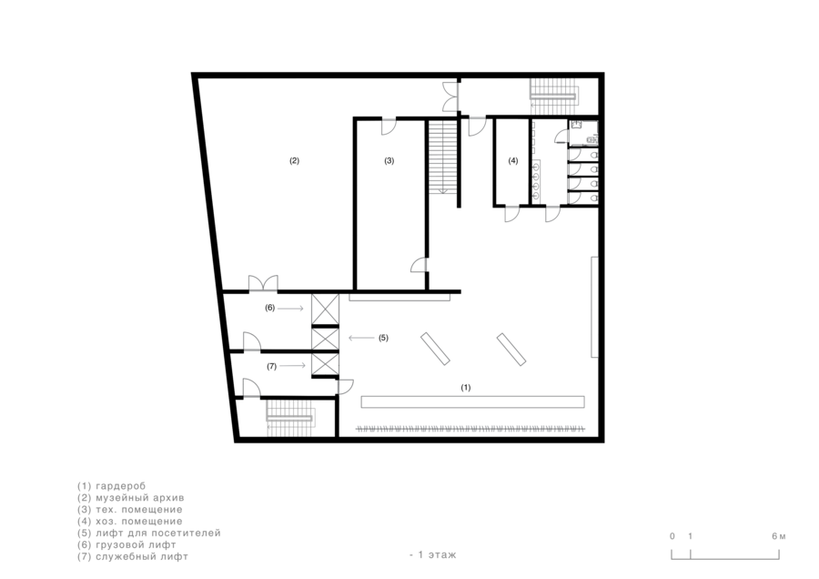
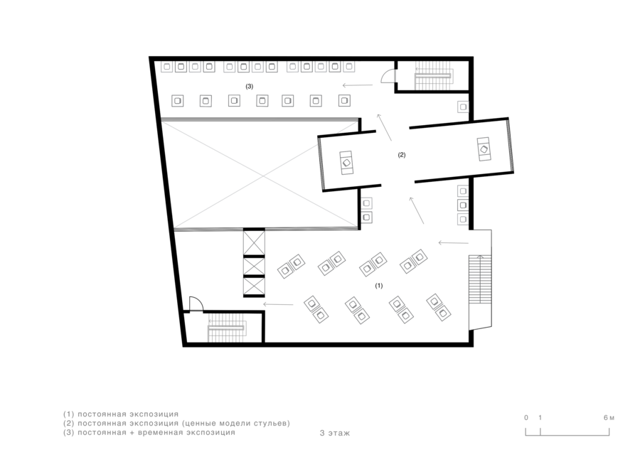
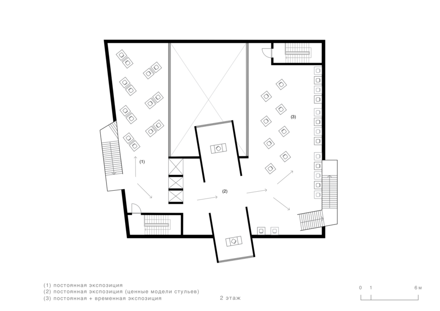
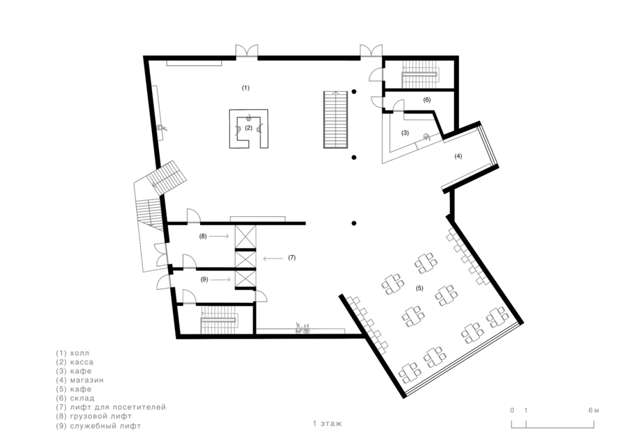
Концепция музея истории дизайна стула, расположенного на острове в устье реки Смоленки, г. Санкт-Петербург

Стул — неотъемлемая часть интерьера. По этой причине на первый план в организации музея выходит внутренняя среда. Она вылетает наружу, становится частью экстерьера.
Главная черта стула — функциональность, поэтому планировочные решения сформировали фасад.

парящие прямоугольные конструкции влетают в фасад здания и вылетают из него

Стулья экспонируются на контрасте. Модели противопоставляются друг друг по разным характеристикам: материал, форма, технология, эпоха.
Посетителям предлагается познакомиться с историей дизайна стула, сравнить представленные объекты, погружаясь в контекст времени.