
Общие сведения об объекте

Дизайн проект таунхауса элитного уровня в стиле минимализм — это искусно сочетание чистых линий, просторных помещений и изысканных материалов, создающее атмосферу элегантности и роскоши. Каждая деталь в интерьере тщательно продумана и выполнена с безупречным вкусом, придавая помещениям утонченный и изысканный вид.
Фасад


Планировка


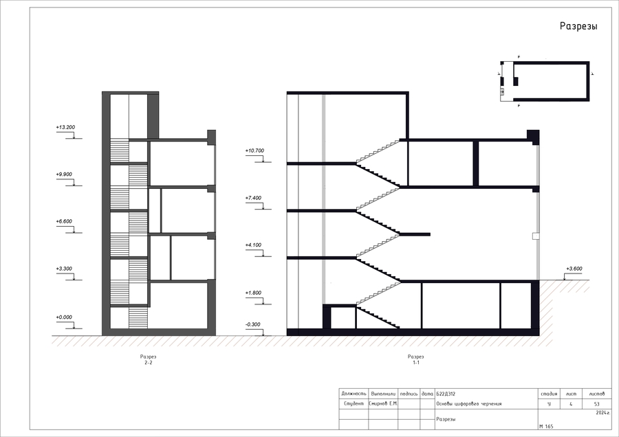
Чертежи