
Дизайн-проект интерьера квартиры был выполнен в программе Revit. В рамках курса мы с нуля разрабатывали проект на основе реального объекта, осваивая основные инструменты и принципы работы в Revit.
Проект включает полный комплект чертежей, необходимых для реализации задуманного интерьерного решения.
Альбом чертежей содержит: — Обмерный план — План демонтажа — План монтажа перегородок — План расстановки мебели — План сантехнического оборудования — План напольных покрытий и плинтусов — План отделки стен — План потолков — План расстановки осветительного и электрооборудования — Развертки, 3D-схемы и перспективные виды

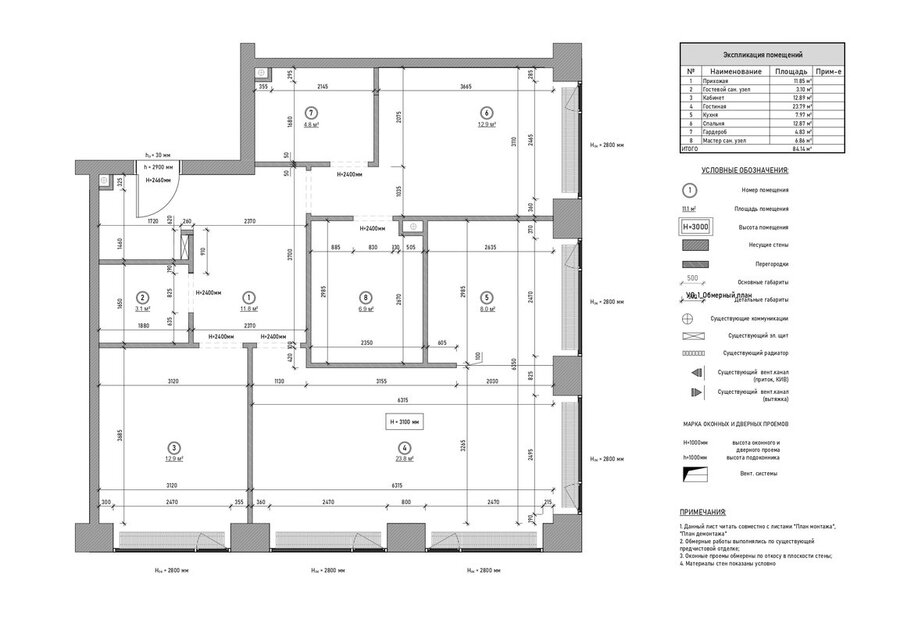
Обмерный план

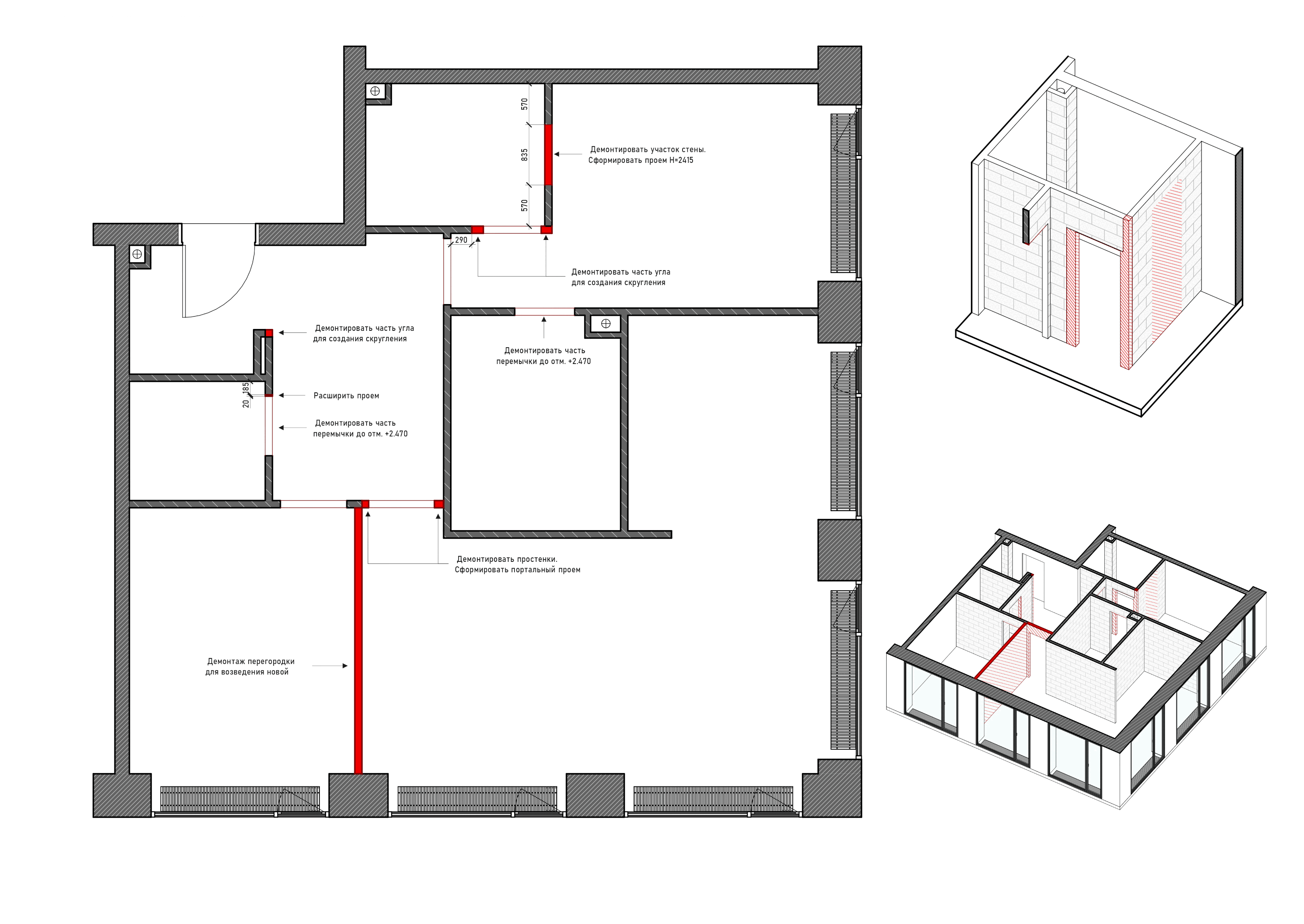
Строительно-монтажные работы

План расстановки мебели
3D схемы
Отделочные работы
Электрика
Развертки