
Проект представляет собой альбом учебных чертежей, созданный по итогам освоения курса «Основы цифрового черчения»

Задания № 1 и № 2. Узоры

Задание № 3. Сопряжения
Задание № 3. Профили архитектурных обломов
Задания № 4 и № 5. Декоративные вазы: базовые и усложнённая
Задания № 6 и № 7. Проекции: 1 уровня и 2 уровня
Обмерная практика. Обмерный план и спецификация дверных и оконных проёмов 1 этажа HSE CREATIVE HUB (Пантелеевская, 53)
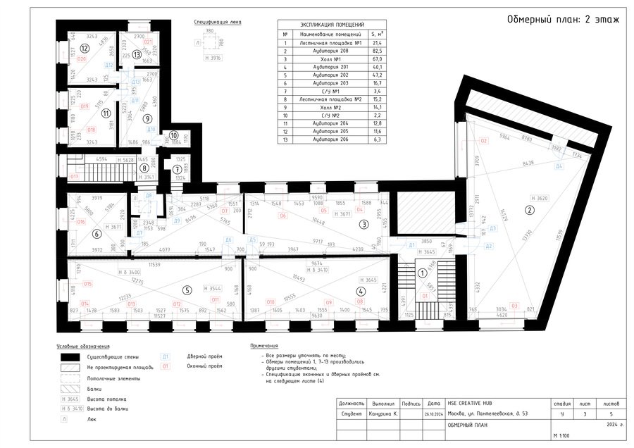
Обмерная практика. Обмерные планы и спецификация дверных и оконных проёмов 2 этажа HSE CREATIVE HUB (Пантелеевская, 53)