
// АЛЬБОМ ЧЕРТЕЖЕЙ УЧЕБНЫХ ЗАДАНИЙ
В рамках учебного модуля я изучала основы цифрового черчения и осваивала инструменты проектирования в программе AutoCAD. В процессе работы были выполнены базовые задания по построению 2D-чертежей и оформлению графической документации. В качестве итоговой работы выполнен обмерный план учебного класса, а также разработан план перегородок по собственному дизайн-проекту.
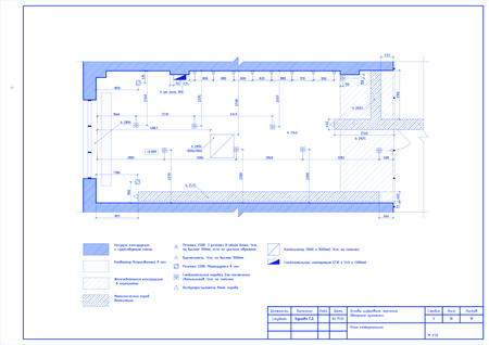
// ОБМЕРНАЯ ПРАКТИКА


ОБМЕРНАЯ ПРАКТИКА
В ходе обмерной практики был выполнен обмер учебного помещения, составлен размерный план с фиксацией всех конструктивных элементов и проёмов, а также план коммуникаций, отражающий расположение инженерных систем. Работа выполнялась в AutoCAD с соблюдением стандартов оформления проектной документации.
ПРОЦЕСС ОБМЕРНОЙ ПРАКТИКИ
// ПЛАН ВОЗВОДИМЫХ ПЕРЕГОРОДОК
ПЛАН ВОЗВОДИМЫХ ПЕРЕГОРОДОК