

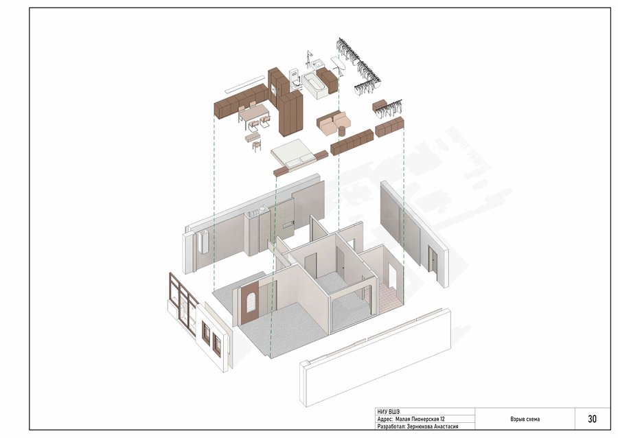
Данный проект разрабатывался для молодой пары, которая предпочитает лаконичность. В проекте много дерева и пастельных оттенков. Чертежи выполнены в программе Revit.
Планировка
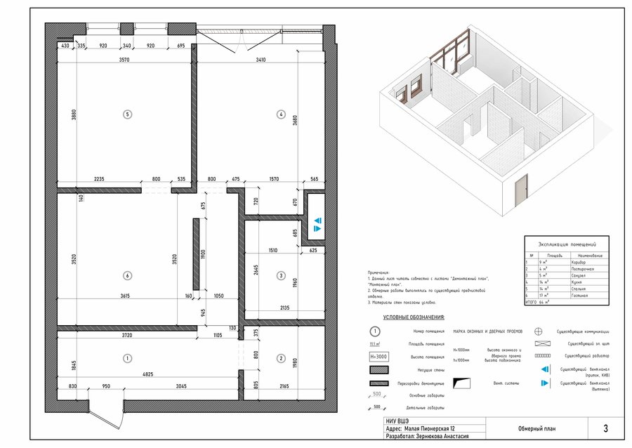
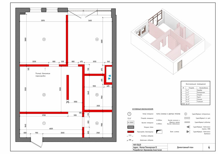
Обмерный и демонтажный планы

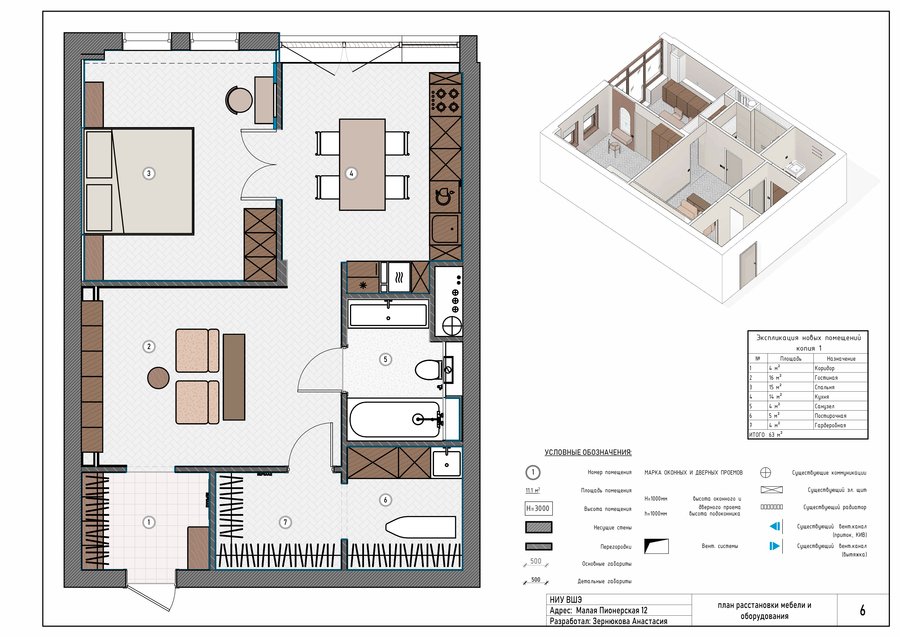
План расстановки мебели и оборудования
Привязка сантехнического оборудования
План отделки стен
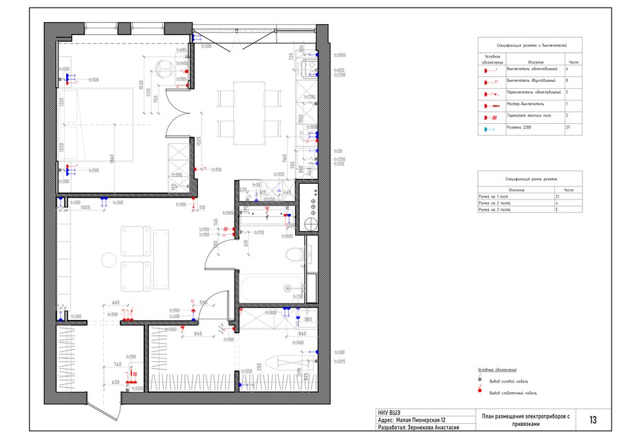
Электрика и осветительные приборы
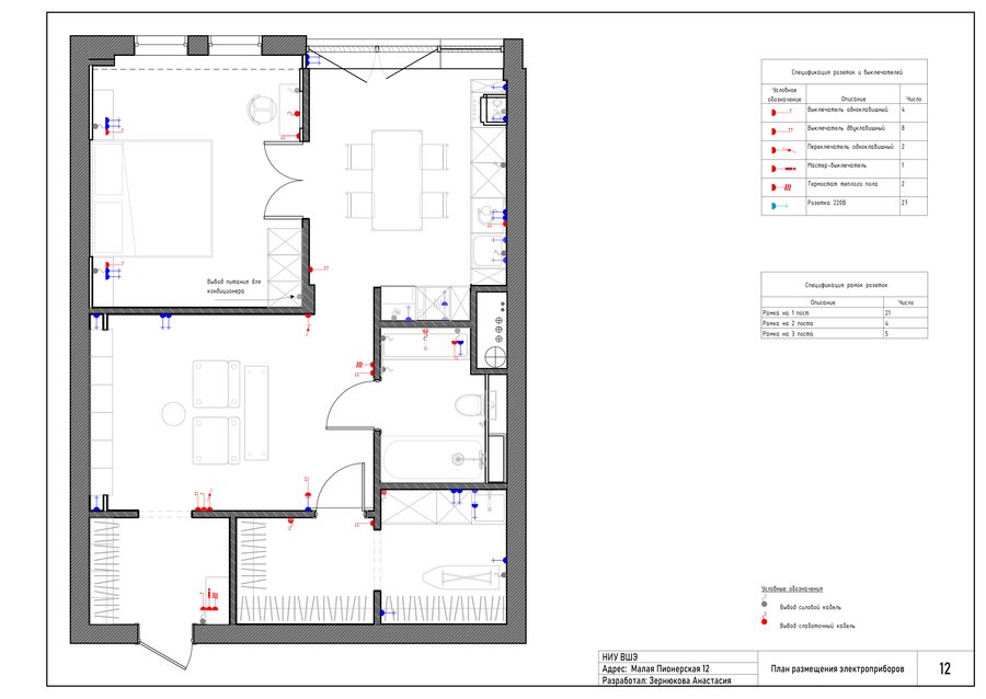
Планы размещения электроприборов
План расстановки осветительных приборов
3Д схемы и развертки
Развертки и 3д схемы гостиной
3д схемы и развертки кухни
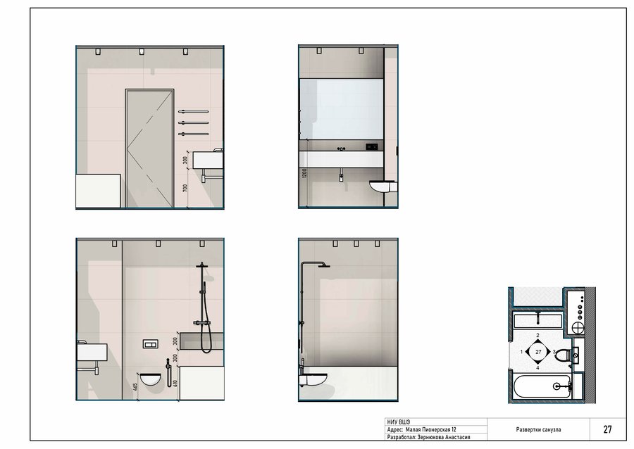
Развертки и 3д схемы ванной
Мебель индивидуального изготовления
Стеллаж индивидуального изготовления