Дизайн-проект квартиры 140 м² под сдачу для 4 студентов, которые любят исторический центр города, искусство, кино, ценят минимализм, простоту и функциональность.
Интерьер вдохновлен работами дизайнера и архитектора Винсента ван Дуйсена. Яркими акцентами в проекте стали работы американского художника Сая Твомбли.
Задачей проекта было из небольшого бюджета создать уютное и стильное место для молодежи.
Вид на общую зону

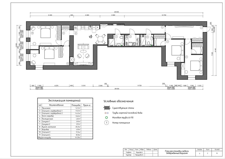
Планировочное решение


Вид на кухню
Вид на коридор
Вид на спальню
Сай Твомбли отражает концепцию того, что все должно быть чистым, если это материал, то он его использует как чистую материю, то есть графит естественным образом, оседая на бумаге, проявляет свою суть. Этого я добиваюсь в своем проекте, используя сочетание разных материалов и фактур. Монохромные цвета проявляют свою суть, став чистой «обложкой» для ярких акцентов.
Вид на спальню. Картина Сая Твомбли Quattro Stagioni II. Primavera
В монохромной прихожей черный акцент в виде потолка и стены, который подчеркивается симметричной композицией. Остальные стены выполнены в сером цвете, чтобы скрыть асимметрию и подчеркнуть графичные элементы.


Вид на прихожую
Вид на прихожую
Вид на прихожую
В санузле в качестве освещения используется «световое полотно», для того, чтобы сделать эффект естественного освещения.


Вид на санузел
Альбом чертежей






