
Концепт

Дизайн учебного кластера перекликается с прошлым здания Школы Дизайна и культурным кодом советской эстетики, близкой к сердцу любого россиянина. В этом интерьере встречаются различные материалы и детали, напоминающие советскую эпоху и отечественный культурный код — от кружева на столе, до стеклянных блоков на кухне кофе поинта.
Так же, изучив рабочие места известных архитекторов, дизайнеров одежды и интерьера — я сделала вывод, что лучшая эстетика для создания дизайнерских проектов — это спокойные светлые тона, удобная мебель, и неперегруженное окружение вокруг рабочего места.
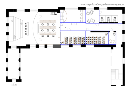
Зонирование и план


КОФЕ ПОИНТ
КОМПЬЮТЕРНЫЙ КОВОРКИНГ
КОМПЬЮТЕРНЫЙ КЛАСС