
Адрес
Школа дизайна НИУ ВШЭ г. Москва, ул. Малая Пионерская 12, 4 этаж
Концепция
Задача: Создать просторную, энергичную и не отвлекающую обстановку. Это зоны для индивидуальной/групповой работы и учёбы. Вносить оживление, стимулировать общение и мозговой штурм. Это акценты в зонах отдыха, групповой работы и навигации.

Основная суть: Создать пространство, которое одновременно помогает сосредоточиться и вдохновляет на общение и творчество.
Как это работает?
База: Концентрация и творческое вдохновение
Стиль: Минимализм + Лофт
Цвета: Серый (бетон, металл), Белый (стены, мебель), Оранжевый (акцент, декор)
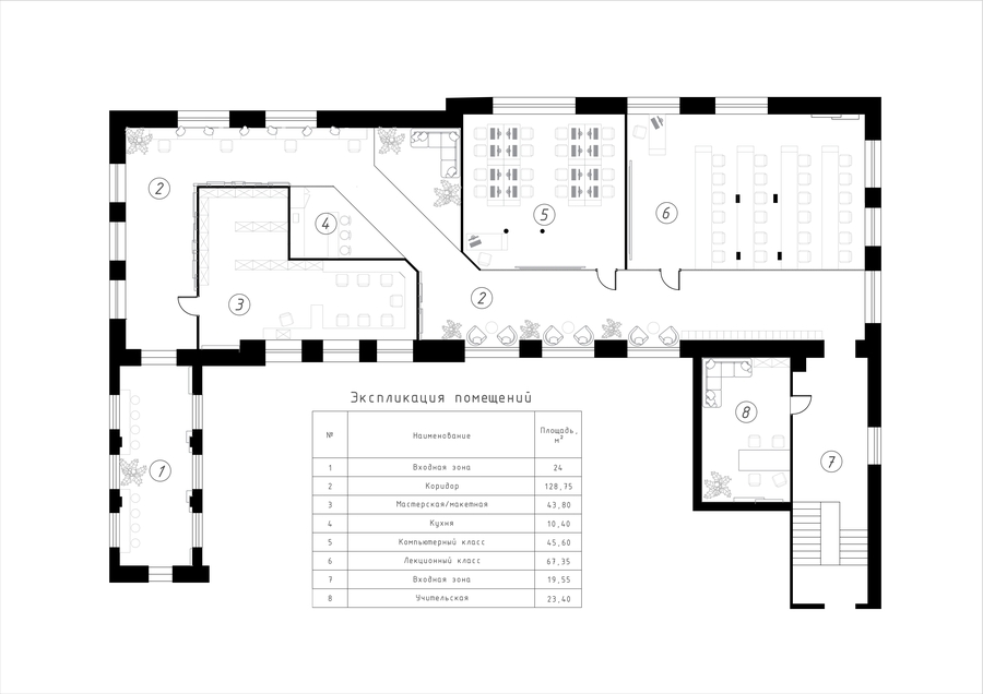
Планировочное решение

Зонирование и экспликация помещений


Планы с мебелью и размерами
Визуализации
Входная зона
Коридор


Детали коридора


Мастерская
Кухня
Компьютерный класс
Лекционный класс
Учительская
Аксонометрия