
Проект представляет собой альбом учебных чертежей, выполненных в программе AutoCAD в рамках дисциплины «Специальные технологии».
Работа включает учебные упражнения — узоры, сопряжения, архитектурные профили, декоративные элементы и проекции, а также обмерные планы и планы потолков, созданные по результатам обмерной практики в здании НИУ ВШЭ (ул. Старая Басманная, д. 21/4, корпус Б1).


Задания: узоры


Задания: Сопряжения

Задание: профили архитектурных обломов


Задание: вазы


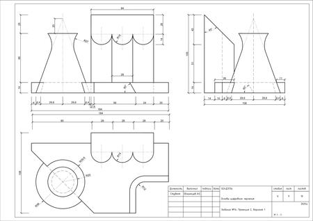
Задания: проекции
Задание: план возводимых перегородок