
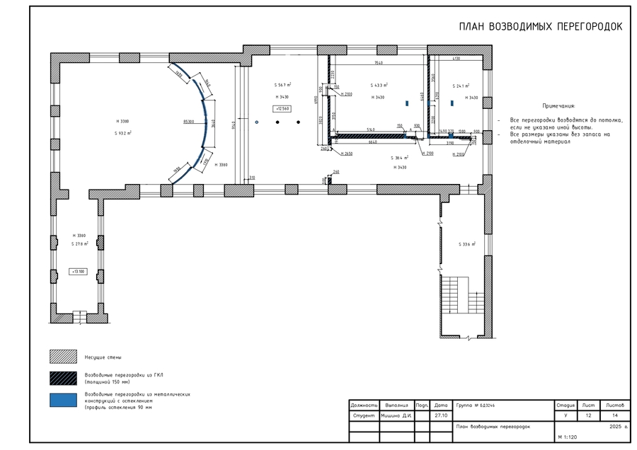
Проект представляет собой альбом с практическими заданиями по освоению ключевых возможностей AutoCAD. В него входят планы помещений Канатного цеха с водонапорной башней завода «Красный гвоздильщик», чертежи нового корпуса НИУ ВШЭ, а также план возводимых перегородок для учебного кластера.
Практические задания
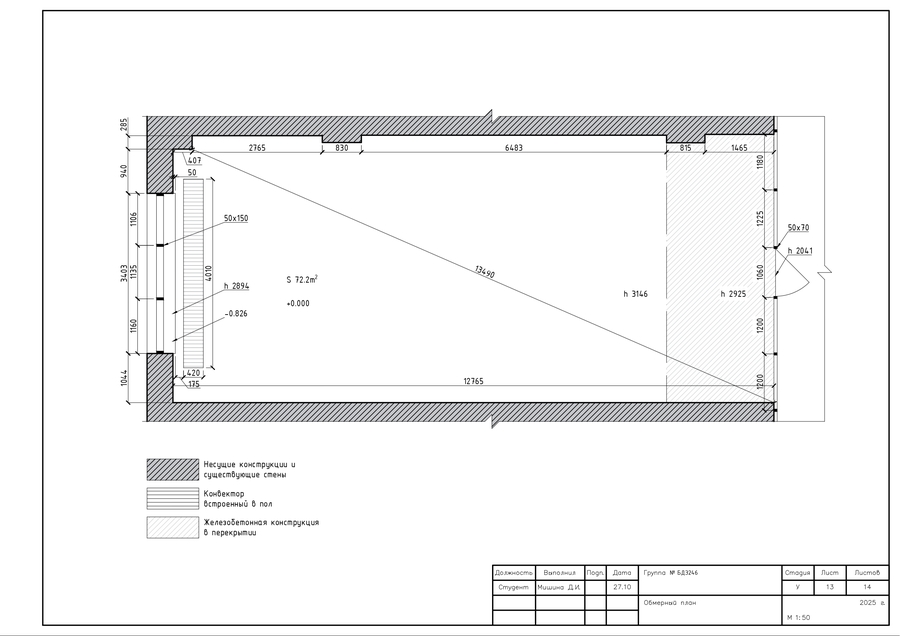
Обмерный план

План возводимых перегородок